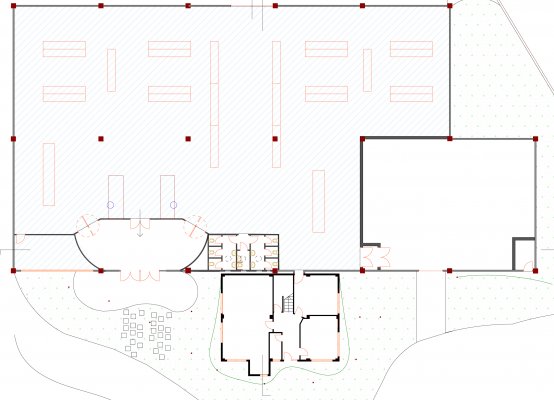
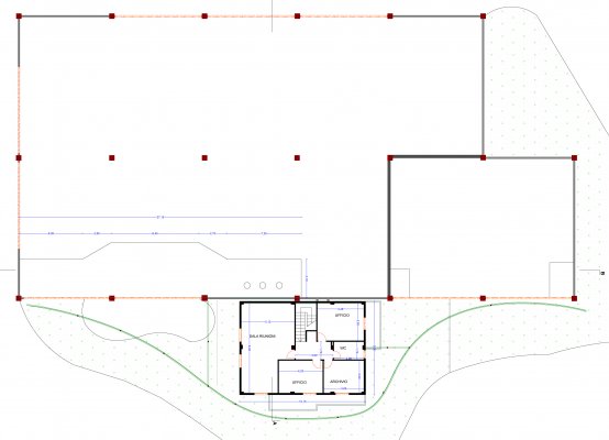
Locale commerciale, media struttura di vendita, sito a Modica in c.da Serrauccelli. Progetto concessionato gennaio 2008. Il progetto ha previsto il cambio di destinazione d'uso di un locale esistente con una diversa distribuzione interna e la modifica dei prospetti.
Altri progetti della stessa categoria
-
Locale Commerciale Spa-Min
2010
-
Locale Commerciale Man.
2010
-
Locale Commerciale Lep.Rou.
2009
-
Locale Commerciale Mod.Cer
2008
-
Locale Commerciale Scar.
2005
-
Locali Commerciali Michelica
2001
-
Locale Commerciale Spat.Ros
2000
-
Locale Commerciale Not.Gior
2000
-
Locale Commerciale Bar Sp.An
1998
-
Locale Commerciale Pol.Giu.
1981
-
Locale Commerciale Spad.Ant
1980

















